Rocks & mirror
WÄRTSILÄ
Encyclopedia of Marine and Energy Technology

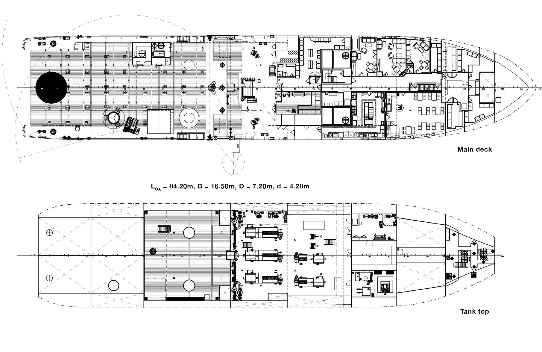
Aids to navigation service vessel

marine

The vessel specially equipped to maintain and repair navigation buoys, beacons, automatic lighthouses, etc.

Aids to navigation service vessel1 Aids to navigation service vessel2